I tak powstaja mury- 2014r
Witam
Upłynoł niecały rok i powstały mury (pustak leier termopor 25)

Przygotowka - akcja murowanie.


Przygotowania do stropu
Witam
Upłynoł niecały rok i powstały mury (pustak leier termopor 25)

Przygotowka - akcja murowanie.

Przygotowania do stropu


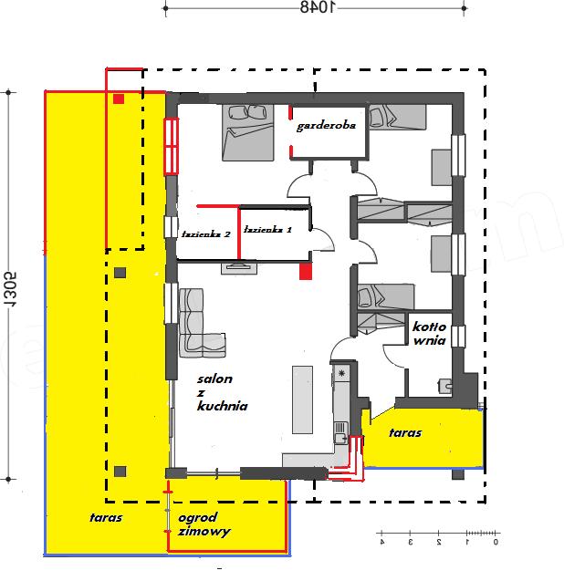
Zmiany w projekcie(czerwona linia)
Drugi etap fundamentow
Fundamenty, zarys domku.Malowane dwukronie dysperbitem.
Działeczka ogrodzona tymczasowo- widok na połodniowa strone.Cos zaczyna sie dziac.
Północna strona działki. Musiałem zasypac dwa stawy i wyciac pare drzewek. Odtej strony bedzie wiazd na posesje. Gornym lewym rogu ,kolo quada tygrys .... borys.


Tam gdzie rosły drzewa i był staw zagospodarowałem teren pod garaz w przyszłosci
To ten gosc pilnuje nam działki ---- borys w akcji
WITAM
MAM TROCHE CZASU - PRZERWAW PRACY- WIEC ZACHCIAŁO MI SIE NAPISAC BLOGA NA TEMAT NASZEJ BUDOWY TK 02. JEST TO BUDYNECZEK PARTEROWY, W NASZYM PRZYPADKU LUSTRZANE ODBICIE ,WIELKOSC DOMU NIE ZMIENIŁA SIE .NATOMIST ZMIENIO SIE UKŁAD SCIANEK DZIAŁOWYCH - ALE TO POZNIEJ
JEST TO MOJ PIERWSZY BLOG WIEC PROSZE O TROCHE WYROZUMIAŁOSCI
POZDRAWIAM
Komentarze